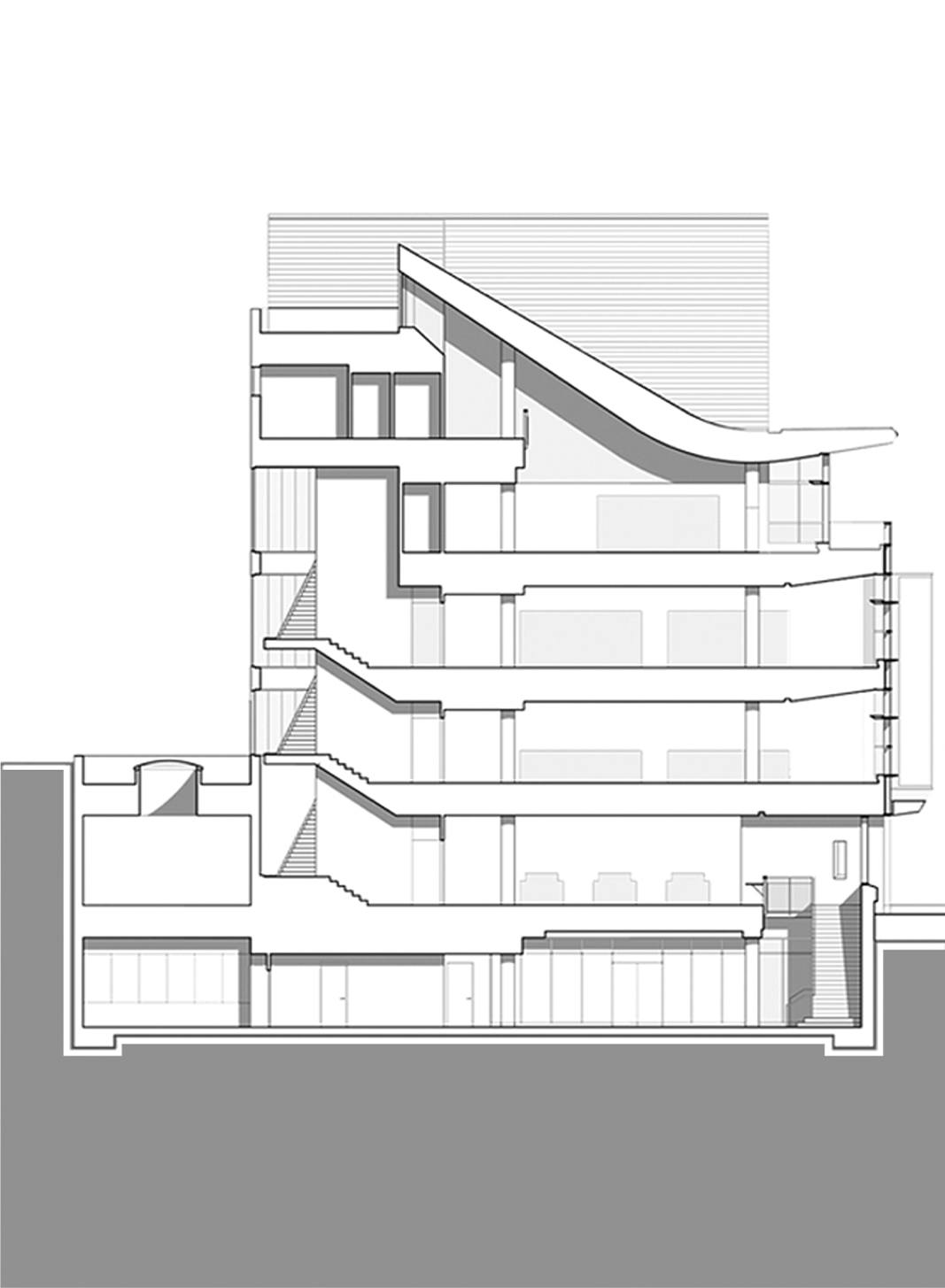
The Bronx Library Center anchors an pivotal spot on a major Bronx thoroughfare and provides cultural and social amenities in an under-served part of the City. The Library Center houses more than 200,000 books, periodicals, and multimedia materials. With expanded circulating and reference collections, state-of-the-art information technology, and a full range of education, business, and technology training it has become a cherished community resource. At the time of its opening, the Bronx Library was NYPL’s largest capital project in two decades, and it remains the largest library in the borough.
This was New York City’s first project to receive LEED Silver certification from the United States Green Building Council. Sustainable features include high performance curtainwall, extensive daylighting, energy efficient mechanical and lighting systems and controls, and environmentally friendly materials with high recycled content. It is also one of the City’s first Active Design projects.







