Skip to main content

The Scarsdale Public Library project responds to the shifts in community needs, trends in library services, and changes in user preferences.  Through a comprehensive programming and planning exercise, the space was redesigned, renovated, and expanded to fulfill the Library’s mission.

The Scarsdale Public Library project responds to the shifts in community needs, trends in library services, and changes in user preferences.  Through a comprehensive programming and planning exercise, the space was redesigned, renovated, and expanded to fulfill the Library’s mission.

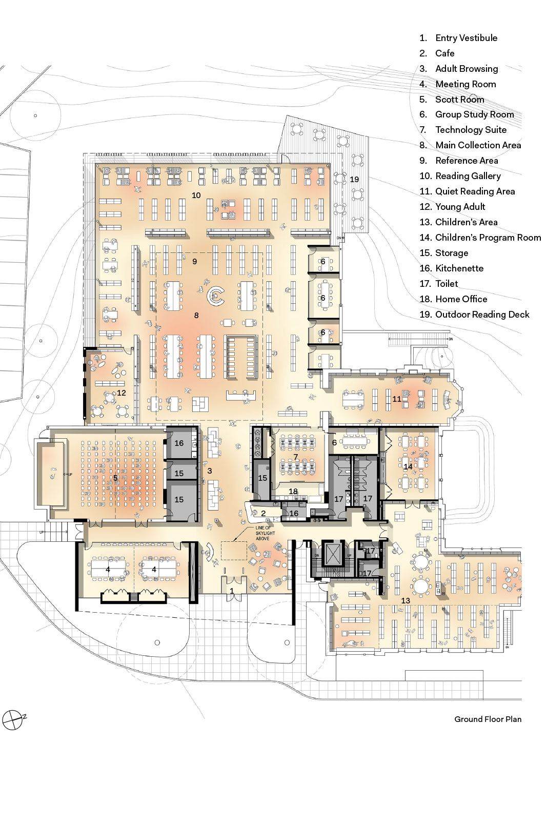
The library, built in 1951 and added to over time, required transformation to optimize utilization of the full facility, improve the library experience, and provide adaptable spaces that embraced new developments in technology. The design team incorporated a new “makerspace” for the community and explored options to allow a greater amount of flexibility at all levels of programming: collection size, number of seats and computer stations, and technological infrastructure. Given the village’s reliance on the library for public meeting space, flexible conference and meeting rooms are equipped with retractable walls to accommodate varying group sizes. The addition of a multi-purpose technology center and the reconfiguration of the old-fashioned circulation desk into smaller, distributed locations allows for better research opportunities and greater customer contact and service.

The library, built in 1951 and added to over time, required transformation to optimize utilization of the full facility, improve the library experience, and provide adaptable spaces that embraced new developments in technology. The design team incorporated a new “makerspace” for the community and explored options to allow a greater amount of flexibility at all levels of programming: collection size, number of seats and computer stations, and technological infrastructure. Given the village’s reliance on the library for public meeting space, flexible conference and meeting rooms are equipped with retractable walls to accommodate varying group sizes. The addition of a multi-purpose technology center and the reconfiguration of the old-fashioned circulation desk into smaller, distributed locations allows for better research opportunities and greater customer contact and service.

While the flexible spaces, refreshed and re-envisioned interiors, and improved technological infrastructure are the highlights of the new library, the space also provides an expanded connection to the community it serves. Featuring an entrance plaza, a new cafe, and lobby that opens up to the library’s main collection area, daylight and views establish a strong connection from entry to exit.

While the flexible spaces, refreshed and re-envisioned interiors, and improved technological infrastructure are the highlights of the new library, the space also provides an expanded connection to the community it serves. Featuring an entrance plaza, a new cafe, and lobby that opens up to the library’s main collection area, daylight and views establish a strong connection from entry to exit.

New programming opportunities, such as after-hours scheduling for the Technology Center and increased access of the expanded children’s area, solidify the Library as a communal hub.

New programming opportunities, such as after-hours scheduling for the Technology Center and increased access of the expanded children’s area, solidify the Library as a communal hub.

Location
Scarsdale, NY
Area
36,000 sf
Clients
Scarsdale Public Library
Recognition
SARA National—Design Award of Excellence
SARA NY—Design Award of Honor
View Project Facts
Location
Scarsdale, NY
Area
36,000 sf
Clients
Scarsdale Public Library
Recognition
SARA National—Design Award of Excellence
SARA NY—Design Award of Honor
Your browser is out-of-date!

Update your browser to view this website correctly. Update my browser now

×